松屋タワー

※下の画像をクリックしていただくと画像が切り替わります。
![]() |
![]() |
![]() |
![]() |
![]() |
最寄駅 | (地)長堀緑地線松屋町駅徒歩1分 | 最寄駅 | (地)堺筋線長堀橋駅徒歩5分 |
---|---|---|---|
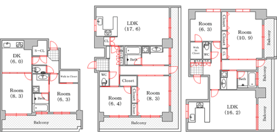
所在地 | 大阪市中央区松屋町 | Type | 2DK/2LDK |
完成 | 平成21年01月 | 構造 | 鉄筋コンクリート造29階建 |
賃料 | 155,000~363,000円 | 共益費 | 30,000~60,000円 |
敷金 | 2ヶ月 | 礼金 | - |
設備 | ペット相談可・オートロック・TVモニターホン・宅配BOX・ピッキング防止錠・システムキッチン・浴室暖房乾燥機・浴室TV・ミストサウナ・床暖房・シャンプードレッサー・ウォシュレット・室内洗濯置場・エアコン・フローリング・エレベーター・BS・CATV・光ファイバー・駐輪場・バイク置場・駐車場・アスレッチクジム・コンシェルジュサービス・ポーターサービス |
---|